欢迎光临开云官方端网站官方网站! 设为首页 | 加入收藏
开云官方端网站
工业铝型材及配件系列 倍速线配件系列
辊道输送线 托盘输送机
物流输送滚筒 工业踏步走台系统
机械防护围栏 精益管及结构件
流利条及结构件 自由式输送系列
 
  开云官方端网站新闻 当前位置:网站首页 >> 开云官方端网站新闻 >> 铝合金精益管居然有这么多规格  
铝合金精益管居然有这么多规格
发布时间:2019-4-30 10:20:24  访问数:3283

铝合金精益管又称作第三代精益管或铝合金线棒,它还有一个更高大上的名字:”十”字型垂直双向定位管。铝合金精益管的优势之前也介绍过了,它轻便,耐腐蚀,组装灵活,环保,回收率高。
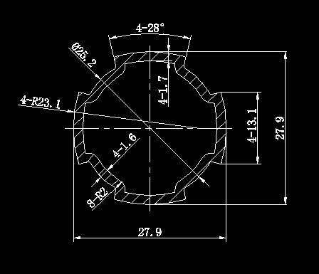
我们常用的铝合金线棒直径一般是28mm,其实铝合金精益管的尺寸远不止这些。光在开云官方端网站开模定制的尺寸就有5种。今天小编就向大家介绍其中一种:

                           

这款直径27.9mm,如果不用卡尺量是看不出来与28mm的区别的。它的壁厚是1.6-1.7mm ,对于精益管来说是比较厚的了。这款也可以配套普通的精益管配件。

随着工业的发展,铝合金精益管也使用的较为广泛,各大工厂对其材质也是要求较严格,因此开云官方端网站家铝合金精益管在业内也是极受欢迎,如果大家想了解更多铝合金精益管,欢迎留言!




<< 上一篇:奋力拼搏、砥砺前行-开云官方端网站(重庆)公司召开2019年第一季度会议 下一篇:4040铝型材欧标适合做鱼缸架子吗? >>
电话:023-68617887 68617883 传真:023-68619776 咨询热线:13637756600
地址:重庆市九龙坡区西彭镇森迪大道8号2幢 版权所有 © 开云官方端网站 2013-2014
主营产品:流水线铝型材、流水线配件、组装线配件、精益管及配件、输送机滚筒
渝ICP备13005523号-8
可信网站 网上交易-保障中心 支付宝-特约商家 经营性网站-备案信息

渝公网安备 50010402000343号